10x15m residential duplex house plan CAD drawing
Description
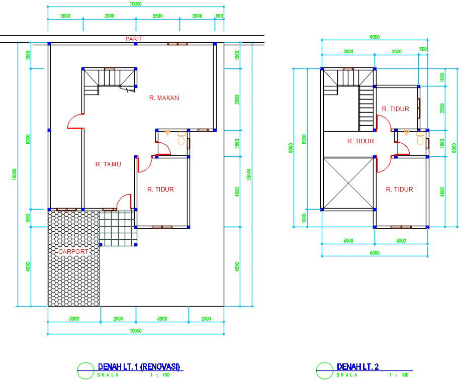
10x15m residential duplex house plan CAD drawing is given in this file. This is G+ 1 house building. A living room, car parking, common bathroom, master bedroom, and parit are available on this ground floor. On the first floor, living room, master bedroom, guest room, and common bathroom are available. For more details download the AutoCAD drawing file from our cadbull website. Thank you for downloading the files from our website.
Uploaded by:

