21x22m modern bungalow architecture ground floor house plan CAD drawing
Description
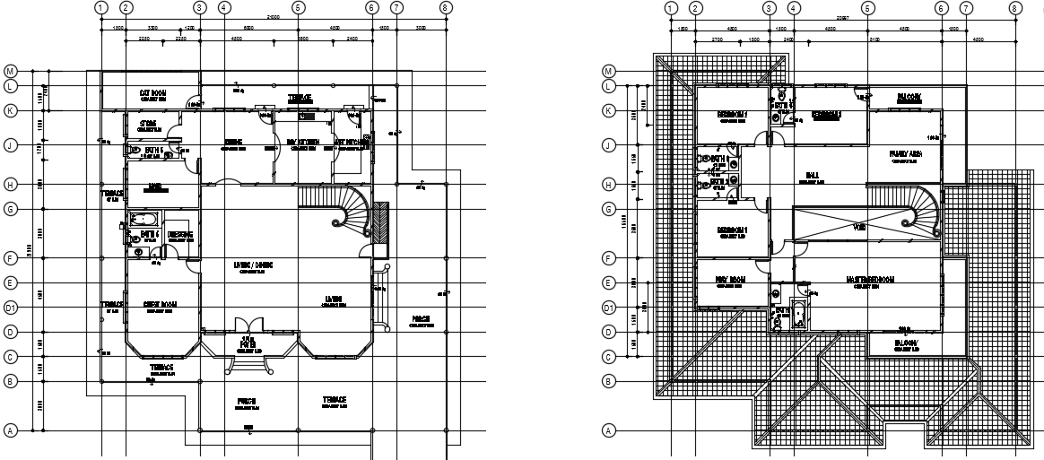
21x22m modern bungalow architecture ground floor house plan CAD drawing is given in this file. This is a 4 bhk house plan. Porch, terrace, foyer, living room, dining area, guest room with the attached toilet & dressing area, dry kitchen, wet kitchen, store room, cat room, and staircase are available. The staircase is provided inside of a home. This house plan is given with the maid's room. This is a duplex house building with two floors. For more details download the AutoCAD drawing file from our website.
Uploaded by:

