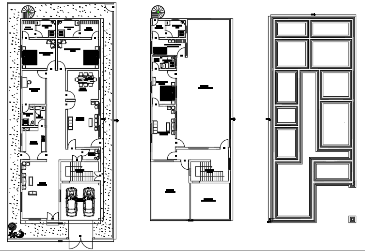
32’x92’ luxury bungalow house plan AutoCAD 2D drawing
Description
32’x92’ luxury bungalow house plan AutoCAD 2D drawing is given in this file. This is G+ 1 bungalow building. On the ground floor, the porch, lounge, stair hall, kitchen, drawing room, common toilet, study room, dining area, children room with the attached bathroom & dressing area, master bedroom with the attached bathroom, & dressing area and common bathrooms are available. On the second floor, low roof, stair hall, terrace, sitting room, guest room with the attached toilet & dressing area, servant quarter with the attached toilet & dressing area, and open terrace are available. For more details download the AutoCAD drawing file from our website.
Uploaded by:

