16x16m luxury villa roof floor and ground floor plan 2D drawing
Description
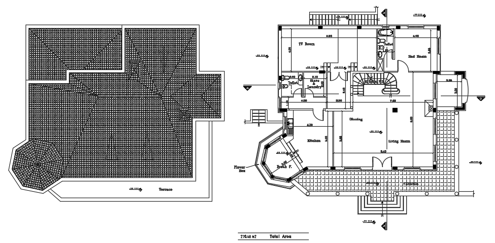
16x16m luxury villa roof floor and ground floor plan 2D drawing is given in this file. This is G+1 building with a basement floor. In this ground floor, veranda, breakfast dining, living room, kitchen, dining area, store room & laundry, common toilet, TV room, and master bedroom with the attached toilets are available. For more details download the AutoCAD drawing file from our website.
Uploaded by:
