6’x12’ bathroom AutoCAD 2D DWG drawing
Description
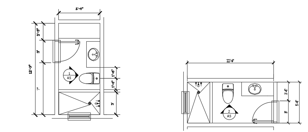
6’x12’ bathroom AutoCAD 2D DWG drawing is given in this file. The length and breadth of the bathroom are 5’8” and 12’3” respectively. Another bathroom size is 11’x6’. The length and breadth of the bathroom are 11’6” and 5’6” respectively. On each bathroom, water closet, washbasin, water taps, and showers are available. For more details download the AutoCAD DWG drawing file from our cadbull website.
File Type:
DWG
File Size:
10.1 MB
Category::
Architecture
Sub Category::
Bathroom & Toilet Drawing
type:
Gold
Uploaded by:

