20x15m duplex villa first floor house plan AutoCAD drawing
Description
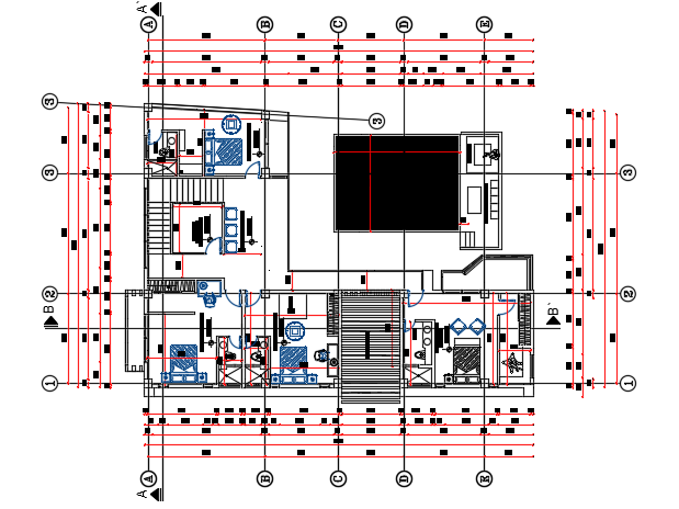
20x15m duplex villa first floor house plan AutoCAD drawing is given in this file. This is a 4bhk house plan. This is G+ 1 house building. The staircase is provided inside of a home which is near the living room. On this first floor, the master bedroom with the attached bathroom, two kid’s bedroom with the attached bathroom, two guest room with the attached bathroom, and living room are available. For more details download the AutoCAD DWG drawing file from our cadbull website.
Uploaded by:

