17x15m duplex villa plan 2D DWG drawing
Description
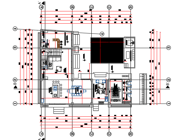
17x15m duplex villa plan 2D DWG drawing is given in this AutoCAD file. This is a 4bhk house plan. The length and breadth of the house plan are 17.7m and 14.59m respectively. On this ground floor, the living room, kitchen, family room, home theatre room, common bathrooms, dining areas are available. Outside, the barbecue kitchen, swimming pool, and bathrooms are available. For more details download the AutoCAD DWG drawing file from our cadbull website.
Uploaded by:

