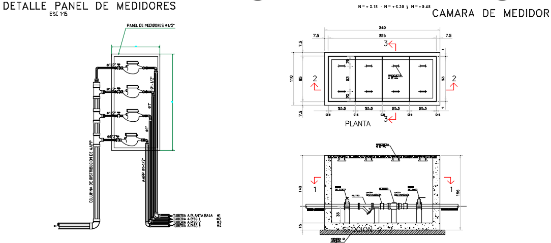
Meter panel detail drawing is given for 16x12m hotel building
Description
Meter panel detail drawing is given for 16x12m hotel building. ½” gauge panel is provided. Pipe line plan and it’s section detail drawing is given. For more details download the AutoCAD DWG drawing file from our cadbull website.
File Type:
DWG
File Size:
4.4 MB
Category::
Construction
Sub Category::
Construction Detail Drawings
type:
Gold
Uploaded by:
