The beam layout of the 14x17m duplex first floor house plan CAD drawing
Description
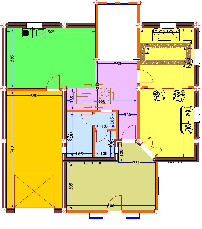
The beam layout of the 14x17m duplex first floor house plan CAD drawing is given in this file. This is G+ 1 house building. On this first floor, the living room, master bedroom with the attached bathroom, kid’s room with the attached bathroom, kitchen, and family room are available. For more details download the AutoCAD drawing file from our cadbull website.
Uploaded by:

