4200x2910mm bathroom flooring layout AutoCAD drawing
Description
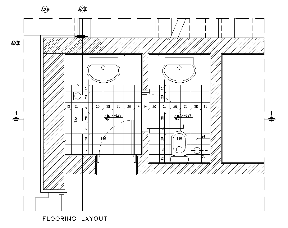
4200x2910mm bathroom flooring layout AutoCAD drawing is given in this file. One western toilet, and two washbasins are available. The height of the bathroom building is 3.5m. Thank you for downloading the AutoCAD drawing file and other CAD program files from our website.
Uploaded by:

