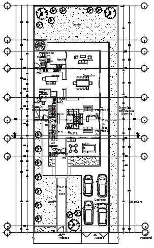
15x40m ground floor house plan is given in this Cad file
Description
15x40m ground floor house plan is given in this Cad file. On this ground floor, the living room, car parking, kitchen, dining area, storeroom, maid room with the attached toilet, outdoor kitchen, and common bathrooms are available. For more details download the AutoCAD drawing model from our website.
Uploaded by:
