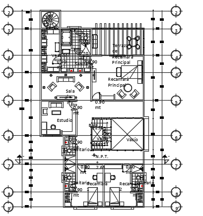
15x40m first floor architecture house plan is given in this Cad file
Description
15x40m first floor architecture house plan is given in this Cad file. On this first floor, the living room, master bedroom with the attached toilet, guest room with the attached toilet, kid’s room with the attached toilet, TV room, and common bathrooms are available. For more details download the AutoCAD drawing model from our website.
Uploaded by:

