6x14m two story ground floor residential building plan AutoCAD drawing
Description
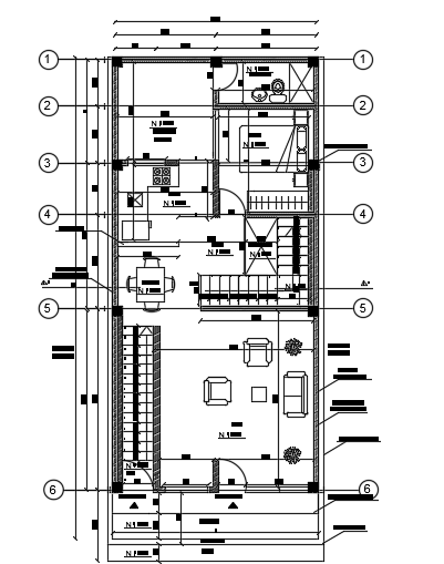
6x14m two story ground floor residential building plan AutoCAD drawing is given in this file. The living room, kitchen, dining area, master bedroom, and common bathroom are available on this ground floor. For more details download the AutoCAD drawing model from our website.
Uploaded by:

