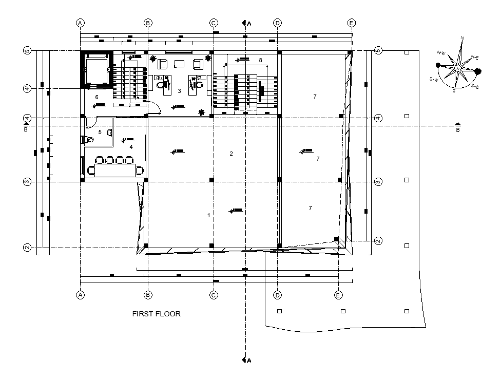
A detail view of the 25x20m first floor museum 2D plan
Description
A detail view of the 25x20m first floor museum 2D plan is given in this AutoCAD file. On this first floor, temporary museum settings, lobby, administration office, conference room, private toile, private entrance hall, public entrance, gent’s toilet, ladies toilet, , and lift is available. For more details download the AutoCAD drawing file. Thank you for downloading the AutoCAD drawing file and other CAD program files from our website.
Uploaded by:

