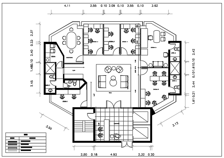
Existing brick wall detail drawing of the 15x10m office plan AutoCAD
Description
Existing brick wall detail drawing of the 15x10m office plan AutoCAD is given in this file. The reception, hall, office rooms, and common bathrooms are available. For more details download the AutoCAD drawing file from our website.
Uploaded by:

