25x20m bungalow house first floor plan AutoCAD drawing
Description
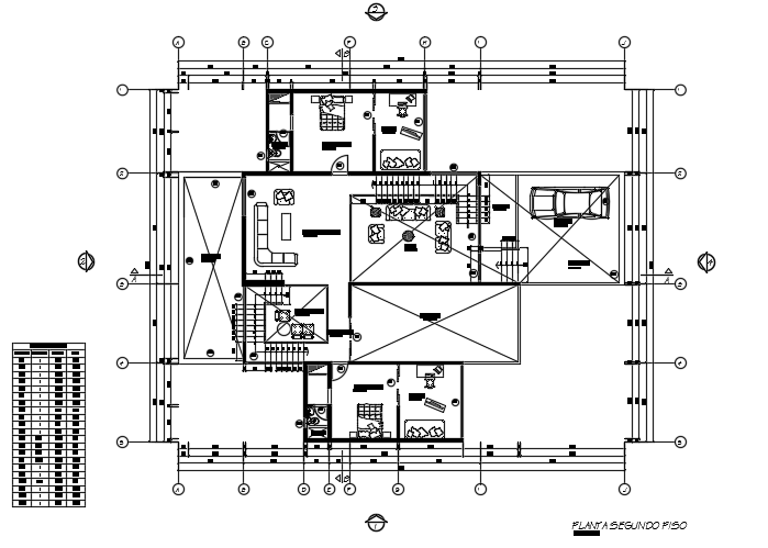
25x20m bungalow house first floor plan AutoCAD drawing is given in this file. This is two story house building. The living room, the master bedroom with the attached toilet, kid’s room with the attached toilet, TV room, and common bathrooms are available on this first floor. For more details download the AutoCAD drawing is given in this file.
Uploaded by:

