First Floor Furniture Layout for 7x14m House Plan CAD file
Description
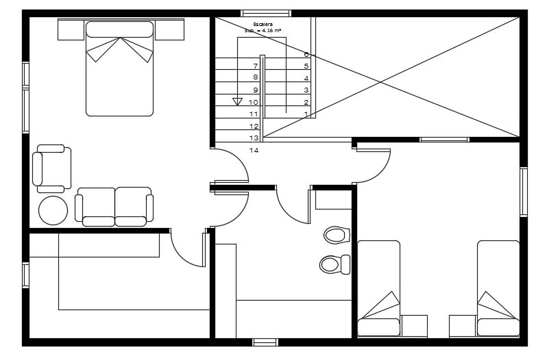
The first floor furniture’s layout of the 7x14m house plan is given in this CAD file. On this first floor, the master bedroom, kid’s room, and common bathrooms are available. For more details download the AutoCAD drawing is given in this file.
Uploaded by:
