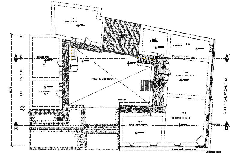
22x18m first floor faculty guest house plan is given in this CAD file
Description
22x18m first floor faculty guest house plan is given in this CAD file. The first floor, consists of the storeroom, 5 bedrooms, kitchen cum dining area, and terrace are available. For more details download the AutoCAD drawing is given in this file.
Uploaded by:

