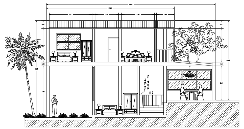
The front cut section view of the 10x20m home building
Description
The front cut section view of the 10x20m home building is given in this file. This is G+ 1 house building. The car parking, living room, kitchen, maid room, maid toilet, dining area, master bedroom with the attached toilet, and common bathrooms are available on the ground floor. The living room, master bedroom with the attached toilet, kid’s room, guest room, and common bathrooms are available on the first floor. For more details download the AutoCAD drawing is given in this file.
Uploaded by:

