Door detail of the 16x15m ground floor house plan is given in this file
Description
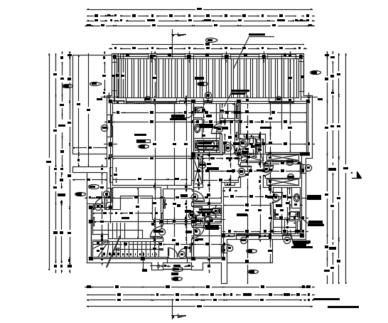
Door detail of the 16x15m ground floor house plan is given in this file. The living room, family room, kitchen, dining area, washing machine room, master bedroom with the attached toilet, kids room with the attached toilet, and common bathrooms are available. For more details download the AutoCAD drawing is given in this file.
File Type:
DWG
File Size:
1.1 MB
Category::
Dwg Cad Blocks
Sub Category::
Windows And Doors Dwg Blocks
type:
Gold
Uploaded by:
