9x15m architecture 4bhk house plan AutoCAD drawing
Description
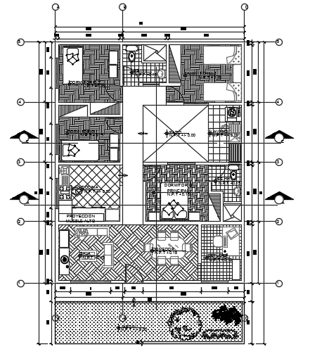
9x15m architecture 4bhk house plan AutoCAD drawing is given in this file. This is a single story house building. The living room, garden, kitchen, dining area, master bedroom with the attached toilet, two kid’s room, guest room, and common bathrooms are available. For more details download the AutoCAD drawing is given in this file.
Uploaded by:

