8x18m architecture house plan CAD model
Description
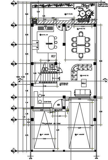
8x18m architecture house plan CAD model is given in this file. This is G+ 3 house building with car parking. On the ground floor, the living room, car parking, kitchen, dining area, and gardens are available. For more details download the AutoCAD drawing is given in this file.
Uploaded by:

