20x14m architecture residential house plan AutoCAD drawing
Description
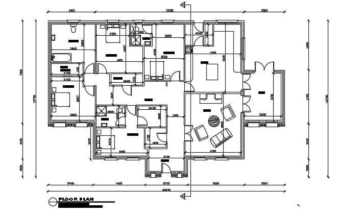
20x14m architecture residential house plan AutoCAD drawing is given in this file. This is a single story house building with 4bhk house plan. The living room, kitchen, dining area, hall way, master bedroom with the attached toilet, kid’s room with the attached toilet, two guest room, and common bathrooms are available. For more details download the AutoCAD drawing file from our cadbull website.
Uploaded by:

