12x9m house plan CAD drawing is given in this file
Description
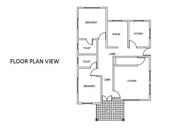
12x9m house plan CAD drawing is given in this file. This is a single story house building with 3bhk. On this plan, the living room, dining area, kitchen, master bedroom with the attached toilet, kid’s room with attached toilet, and lobbies are available. For more details download the AutoCAD drawing file from our cadbull website.
Uploaded by:
