9x9m architecture ground floor house plan AutoCAD drawing
Description
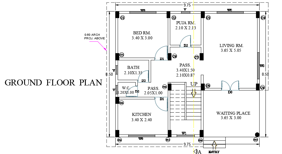
9x9m architecture ground floor house plan AutoCAD drawing is given in this file. This is G+ 2 house building. The living room, kitchen, waiting room, master bedroom, puja room, passage, water closet, and bathrooms are available. For more details download the AutoCAD drawing file from our cadbull website.
Uploaded by:

