10x6m architecture ground floor bungalow house plan AutoCAD drawing
Description
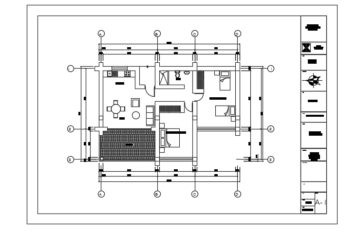
10x6m architecture ground floor bungalow house plan AutoCAD drawing is given in this file. This is single story bungalow building. On this ground floor, the living room, kitchen, dining area, master bedroom, kid’s room, and common bathrooms are available. For more details download the AutoCAD drawing file from our cadbull website.
Uploaded by:

