34x15m first floor house plan AutoCAD drawing
Description
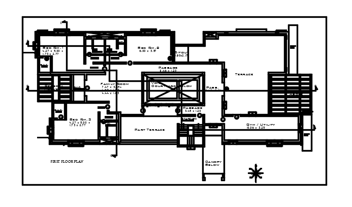
34x15m first floor house plan AutoCAD drawing is given in this file. On this first floor, the living room, master bedroom with the attached toilet, kid’s bedroom with the attached toilet, guest bedroom with the attached toilet, pergola, sit out, part terrace, terrace, family room, and gym with utility areas are available. For more details download the AutoCAD drawing file from our cadbull website.
Uploaded by:

