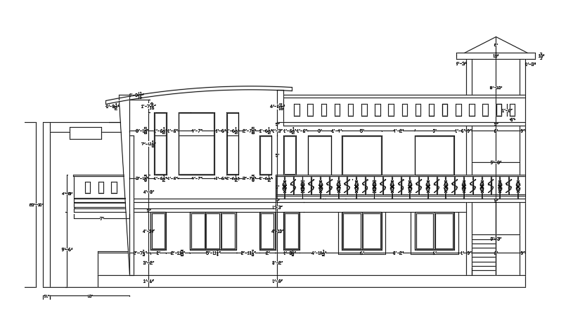
The front elevation with dimension detail of the 57’x26’ house building
Description
The front elevation with dimension detail of the 57’x26’ house building is given in this file. The total height of the building is 24’. The living room, kitchen, dining room, master bedroom with the attached toilet, kid’s room with the attached toilet, passage, and common bathrooms are available. For more details download the AutoCAD drawing file from our cadbull website.
Uploaded by:

