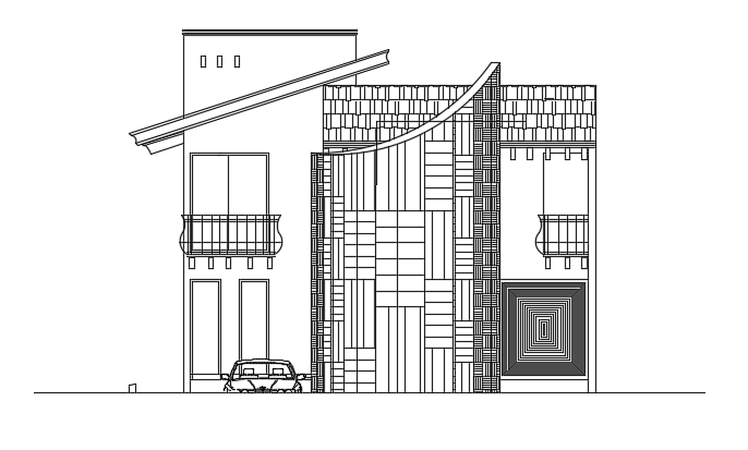
An elevation view of the 10x16m house building
Description
An elevation view of the 10x16m house building is given in this CAD file. This is G+ 2 house building. On this ground floor, car parking, garden, and kitchen is available. On this first floor, the living room, open kitchen, dining area, living room, home theater, and common bathrooms are available. On this second floor, TV room, living hall, master bedroom with the attached toilet, kid’s room, guest room, and common bathrooms are available. For more details download the AutoCAD drawing file from our website.
Uploaded by:

