12x20m house building window schedule AutoCAD drawing
Description
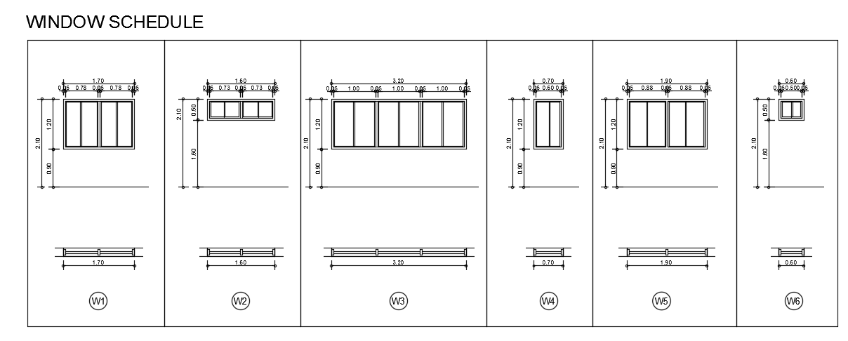
12x20m house building window schedule AutoCAD drawing is given in this file. Here, the window plan and elevation views are given with the dimensions. For more details download the AutoCAD drawing file from our website.
Uploaded by:

