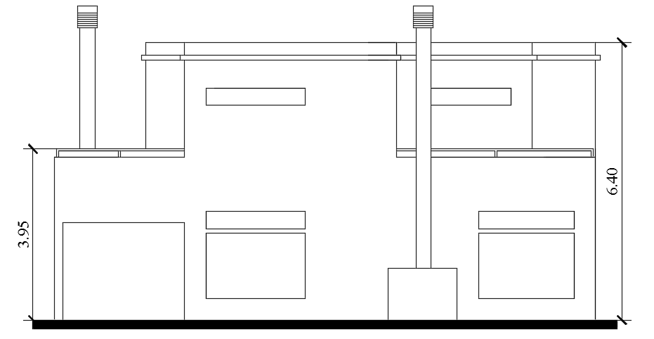
The left side elevation view of the 12x10m house building CAD drawing
Description
The left side elevation view of the 12x10m house building CAD drawing is given in this file. This is G+ 1 house building. The length and breadth of the house plan are 12m and 10m respectively. On this ground floor, the living room, kitchen, galleria, and cochera are available. The living room, master bedroom with the attached toilet, kid’s room, guest room, and common bathrooms are available on this first floor. For more details download the AutoCAD drawing file from our website.
Uploaded by:

