12x19m architecture house plan AutoCAD drawing
Description
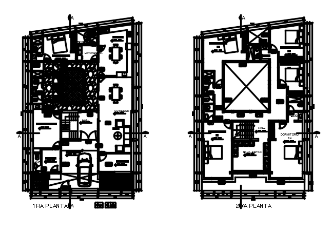
12x19m architecture house plan AutoCAD drawing is given in this file. This is G+ 2 house building. The car parking, living room, hall, kitchen, dining area, master bedroom with the attached toilet, and common bathrooms are available on this ground floor. On this first floor, the living room, master bedroom with the attached toilet, kid’s room with the attached toilet, two guest room, and two common bathrooms are available. A detailed view of the house plan is given. For more details download the AutoCAD drawing file from our website.
Uploaded by:

