26x10m architecture house plan AutoCAD drawing
Description
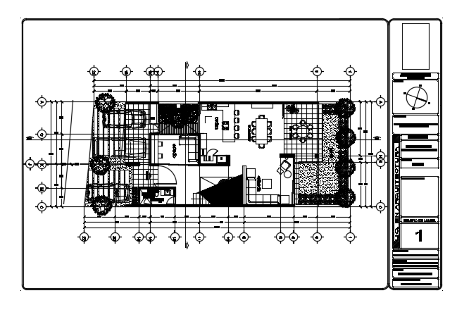
26x10m architecture house plan AutoCAD drawing is given in this file. This is a two story house building. The living room, kitchen, dining area, car parking, garden, and common bathroom are available. For more details download the AutoCAD drawing file from our cadbull website.
Uploaded by:

