26x10m first floor house plan AutoCAD model
Description
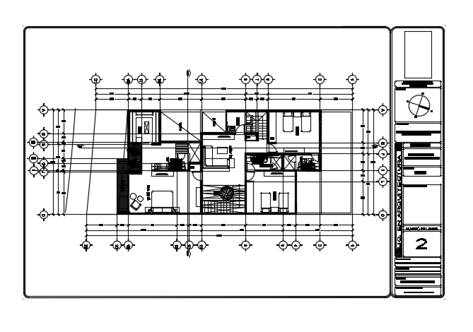
26x10m first floor house plan AutoCAD model is given in this file. On this first floor, the TV room, master bedroom with the attached toilet, kid’s room with the attached toilet, guest room with the attached toilet, and balconies are available. For more details download the AutoCAD drawing file from our cadbull website.
Uploaded by:
