8x11m architecture second floor house plan AutoCAD file
Description
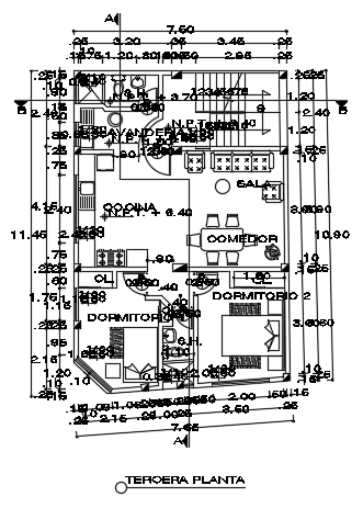
8x11m architecture second floor house plan AutoCAD file is given. This is g+ 2 house building. On this second floor, the kitchen, living room, dining area, lavaderia, master bedroom, guest room, and two common bathrooms are available. For more details download the AutoCAD drawing file from our cadbull website.
Uploaded by:

