12x13m two story house layout 2D AutoCAD drawing
Description
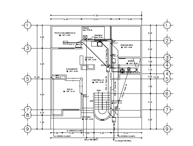
12x13m two story house layout 2D AutoCAD drawing is given in this file. The staircase is provided inside of the house. The living room, garage, kitchen, dining area, master bedroom, and common bathrooms are available on this ground floor. For more details download the AutoCAD drawing file from our cadbull website.
Uploaded by:
