9x15m residential first floor house plan DWG drawing
Description
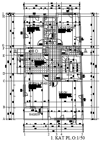
9x15m residential first floor house plan DWG drawing is given in this file. On this ground floor, the living room, salon, kitchen, master bedroom, kid’s room, and common bathrooms are available. This is 3 story residential building. For more details download the AutoCAD drawing file from our cadbull website.
Uploaded by:

