15x10m house building column and reinforcement layout CAD drawing
Description
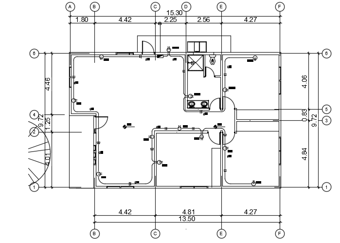
15x10m house building column and reinforcement layout CAD drawing is given in this file. The reinforcement and column numbers are mentioned in this drawing. For more details download the AutoCAD file from our cadbull website.
Uploaded by:

