A section view of the 14x17m house building model
Description
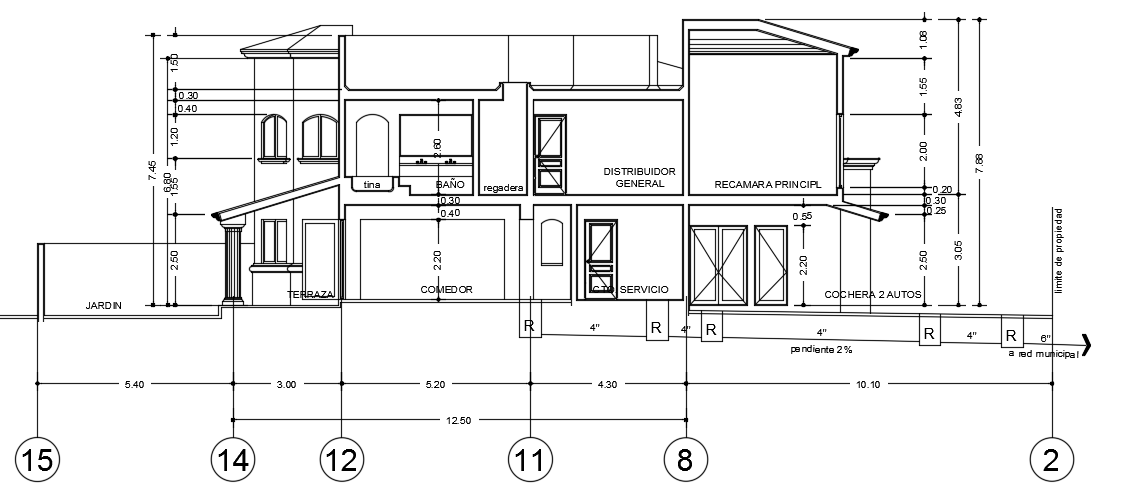
A section view of the 14x17m house building is given in this file. On this ground floor, the car parking, study room, vestibulo, bar, living room, kitchen, dining area, store room, and garden is available. On this first floor, the master bedroom with the attached toilet, guest bedroom with the attached toilet, kid’s bedroom with the attached toilet, and living room is available. For more details download the AutoCAD file from our cadbull website.
Uploaded by:

