12x7m three story house plan is given in this AutoCAD file
Description
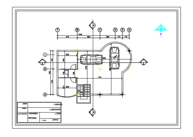
12x7m three story house plan is given in this AutoCAD file. This is ground floor plan. On this ground floor, the car parking, office room, and common toilet is available. For more details download the AutoCAD drawing file from our cadbull website.
Uploaded by:
