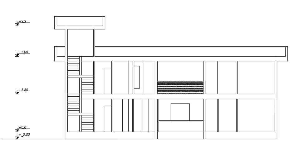
A section view of the 18x18m house building 2d AutoCAD drawing
Description
A section view of the 18x18m house building 2d AutoCAD drawing is given in this file. This is G+ 1 house building. On this first floor, the living room, kitchen, dining area, master bedroom with the attached toilet, and office room is available. On this first floor, the living room, kitchen, dining area, master bedroom with the attached toilet, and office room is available. For more details download the AutoCAD drawing file from our cadbull website.
Uploaded by:

