19x17m architecture ground floor house plan AutoCAD drawing
Description
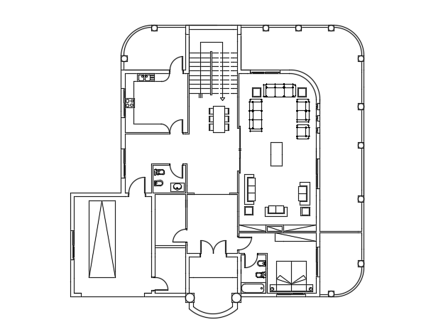
19x17m architecture ground floor house plan AutoCAD drawing is given in this file. The living room, kitchen, dining area, family lounge area, master bedroom with the attached toilet, and common bathrooms are available. The staircase is provided inside of a home. For more details download the AutoCAD drawing file from our cadbull website.
Uploaded by:

