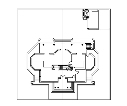
21x14m two story house plan AutoCAD drawing is given in this file
Description
21x14m two story house plan AutoCAD drawing is given in this file. On this ground floor, the living room, kitchen, dining area, the master bedroom with the attached toilet, and common bathrooms are available. For more details download the AutoCAD drawing file from our cadbull website.
Uploaded by:

