Coffee bar
Description
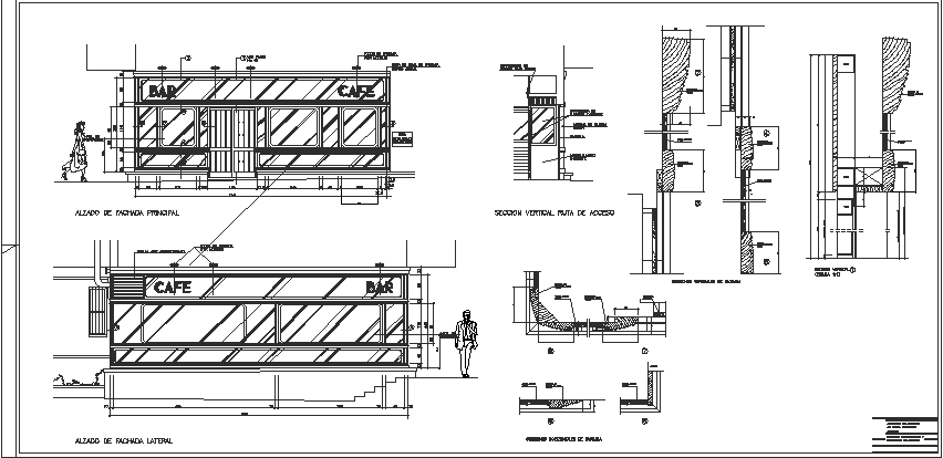
Here the detailed facade drawing of a coffee bar with two side facade showing human scale, all details, specification and dimension of elements with zoomed sectional elevation of small part of the facade with different detailed drawing of joinery and facade in autocad drawing.
Uploaded by:

