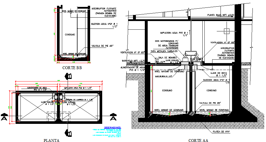
Tank of water pumbing
Description
here is the description of tank of water with its detailed plan and elevations. A water tank is a container for storing water. Water tanks are used to provide storage of water for use in many applications
Uploaded by:
viddhi
chajjed
