LOGIN
HOME
CATEGORIES
UPLOAD FILE
PRICING
HOUSE PLAN
ABOUT US
CONTACT US
Housing light wall
Home
Categories
Electrical
Interior Design Electrical
Housing light wall
Uploaded by:
apurva
munet
View Profile
View Profile
Description
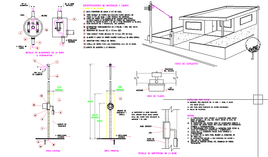
Here is the detailed autocad dwg of housing light wall with its detail plan and elevation and its 3d view elevation of house wall.
File Type:
DWG
File Size:
53 KB
Category::
Electrical
Sub Category::
Interior Design Electrical
type:
Gold
Uploaded by:
apurva
munet
View Profile
Download
Add to libary
find Latest
Related
Files