LOGIN
HOME
CATEGORIES
UPLOAD FILE
PRICING
HOUSE PLAN
ABOUT US
CONTACT US
Earth guard house 2
Home
Categories
Architecture
House Plan
Earth guard house 2
Uploaded by:
apurva
munet
View Profile
View Profile
Description
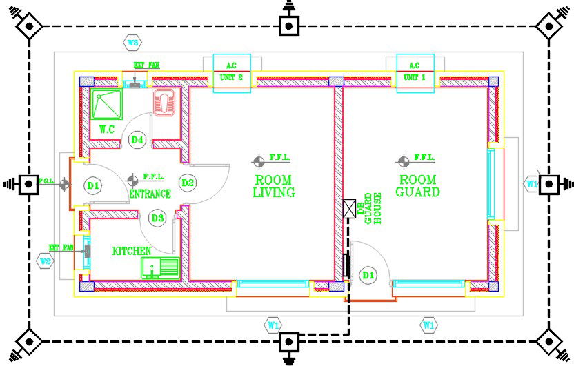
Here is the autocad dwg of earth guard house 2,drawing includes civil plan of the house,proposed layout plan,it includes guard living room,kitchen,guard bedroom,toilet.
File Type:
DWG
File Size:
249 KB
Category::
Architecture
Sub Category::
House Plan
type:
Gold
Uploaded by:
apurva
munet
View Profile
Download
Add to libary
find Latest
Related
Files