LOGIN
HOME
CATEGORIES
UPLOAD FILE
PRICING
HOUSE PLAN
ABOUT US
CONTACT US
Community houses
Home
Categories
Architecture
House Plan
Community houses
Uploaded by:
apurva
munet
View Profile
View Profile
Description
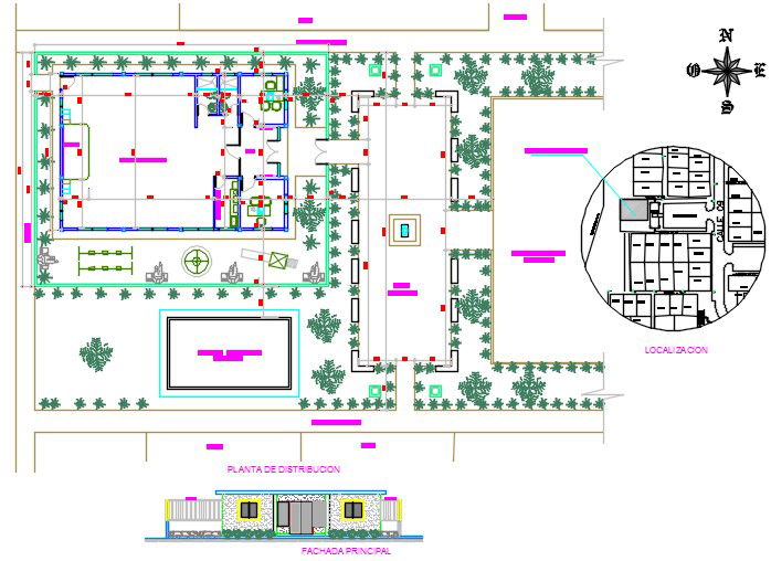
Here is the autocad dwg of community houses,drawing consists of civil plan of site,ground floor plan of houses,proposed layout plan,garden plan,facade elevation of community.
File Type:
DWG
File Size:
216 KB
Category::
Architecture
Sub Category::
House Plan
type:
Gold
Uploaded by:
apurva
munet
View Profile
Download
Add to libary
find Latest
Related
Files