Simple House Ground Floor AutoCAD DWG with Living and Dining Plan

Simple House Ground Floor AutoCAD DWG with Living and Dining Plan
Profile

Uploaded by:

amrit

shrestha

Description

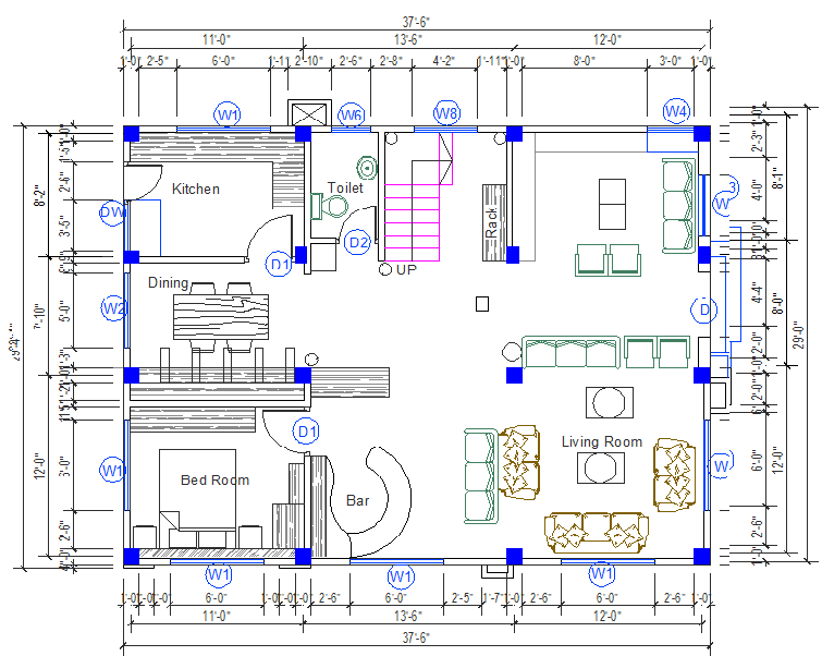
This Simple House Ground Floor AutoCAD DWG file presents a detailed architectural layout that includes a spacious living room, dining area, kitchen, bedroom, and attached toilet. The design efficiently utilizes the available space with accurate dimensions marked for every section, ensuring precision in residential planning. It also includes a well-placed staircase layout and furniture arrangements, providing a realistic idea of space utilization. Each section is neatly labeled to make the drawing easily understandable for architects and builders.

The CAD floor plan is ideal for residential design visualization, construction documentation, and architectural drafting. The file provides structural details suitable for both small family homes and urban housing projects. Created in AutoCAD, this DWG plan is perfect for architects, civil engineers, and interior designers looking for functional yet elegant residential layouts. The design helps users achieve an optimal blend of comfort and efficiency, available exclusively on Cadbull.com for professional use.

Profile

Uploaded by:

amrit

shrestha

find Latest

Related Files

WhatsApp Chat