Building details

Description
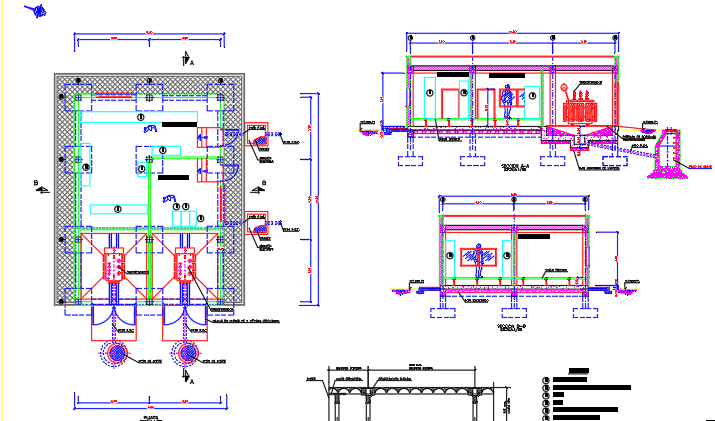
Building details in a layout plan, elevation plan, section details , kitchen, living room, etc. Apartment Building details download file, Apartment Building details dwg file, Apartment Building details
Profile

Uploaded by:

find Latest

Related Files